Top
Registrazione rapida

261.0.051 / V12

13 Isolamento termico

13.1 Avvertenze per il dimensionamento di isolamenti termici

Gli isolamenti termici di tubi e di parti di impianti devono essere perimetrali e continui. I ponti termici e il contatto dei componenti, nonché i flussi d’aria tra il tubo e l’isolamento termico causano perdite di calore, ad esempio nel caso di condutture di circolazione tubo su tubo.

Per il calcolo degli isolamenti termici è fondamentale il diametro esterno del tubo. La tabella seguente assegna il diametro esterno del tubo determinante ai diametri nominali dei prodotti della Nussbaum. Per la rubinetteria e i distributori è consentito dimezzare lo spessore dell’isolamento richiesto per il diametro esterno del tubo corrispondente (SIA 385/1).

Diametro nominale DN

Optipress
acciaio inossidabile (DIN 17440/DIN 17455)

Optipress-Therm (DIN 2394)

Optifitt-Press

Optiflex

Tubo filettato (ISO 7-1/EN 10226)

[—]

[mm]

[mm]

[pollici]

[mm]

[mm]

10

—

—

⅜

16 (x 3.8*)

17.2

12

15

15

—

16 (x 2.2*)

—

15

18

18

½

20

21.3

20

22

22

¾

25

26.9

25

28

28

1

32

33.7

32

35

35

1¼

40

42.4

40

42

42

1½

50

48.3

50

54

54

2

63

60.3

60**

64

64

—

—

—

65

76.1

76.1

2½

—

76.1

80

88.9

88.9

2

—

88.9

100

—

108

4

—

114.3

* Spessore parete del tubo

** Diametro nominale specifico Optipress della conduttura di alimentazione

Diametro nominale e diametro esterno corrispondente di tubi di sistema della Nussbaum e di tubi filettati comunemente reperibili in commercio conformi a ISO 7-1/EN 10226.

13.2 Condutture dell’acqua calda

Le condutture dell’acqua calda devono essere isolate per ridurre al minimo le perdite di calore ed evitare gli effetti di temperature superficiali troppo elevate.

  • Il distributore e le prolunghe alle condutture montanti e allo scaldacqua devono essere isolati quando la lunghezza complessiva di distributore e prolunga è ≤ 1 metro.

  • Nelle condutture di circolazione tubo su tubo, il diametro esterno determinante è la somma dei diametri esterni dei due tubi.

  • Per l’isolamento termico di rubinetteria e valvole si utilizzano gusci isolanti in polipropilene espanso (EPP).

  • Le condutture di erogazione non richiedono alcun isolamento termico.

Spessori isolanti per temperature dell’acqua da 30 °C a 90 °C (secondo le Leggi cantonali sull’energia)

Spessori isolanti per temperatura dell’acqua di 60 °C (secondo Isolsuisse)

Diametro nominale DN

Schiuma polyiso rigida PIR λ ≤ 0.03 W/mK*

Elastomero espanso λ ≤ 0.03 … 0.05 W/mK*

Schiuma polyiso rigida PIR λ ≤ 0.03 W/mK*

Elastomero espanso λ ≤ 0.03 … 0.05 W/mK*

[—]

[mm]

[mm]

[mm]

[mm]

10

30

40

30

60

12

15

30

40

30

60

20

40

50

40

60

25

40

50

40

60

32

40

50

50

80

40

50

60

60

80

50

50

60

60

80

65

60

80

60

80

80

60

80

60

80

100

80

100

80

100

125

80

100

80

100

150

80

100

80

100

200

80

120

80

120

* a 10 °C

Spessori minimi di isolamento delle condutture dell’acqua calda (secondo il Promemoria suissetec 07/2023)

13.3 Condutture dell’acqua fredda

Le condutture dell’acqua fredda devono essere isolate contro il riscaldamento proveniente dalle condutture dell’acqua calda e da altre fonti di calore.

Diametro esterno del tubo

Elastomero espanso

Schiuma polyiso rigida (PIR)

[mm]

[mm]

[mm]

17

13

30

22

28

35

42

48

60

76

19

89

114

140

168

175

219

Spessori di isolamento di condutture dell’acqua fredda (secondo il Promemoria suissetec 10/2020)

13.4 Ritardo del riscaldamento dell’acqua fredda nei tratti montanti

L’igiene dell’acqua potabile è sempre più al centro dell’attenzione anche sul versante dell’acqua fredda. Il motivo è il crescente numero di casi in cui l’acqua fredda viene riscaldata a temperature superiori ai 25 °C mediante impianti tecnici per l’edilizia o a causa delle temperature ambiente elevate, favorendo la proliferazione delle legionelle. Devono pertanto essere adottate misure adeguate per mantenere la temperatura dell’acqua potabile il più fredda possibile e inferiore ai 25 °C.

13.4.1 Problematica

Il mantenimento della temperatura nel sistema di distribuzione dell’acqua fredda influisce sull’intera progettazione ed esecuzione – e deve essere preso in considerazione sin dalle fasi iniziali. Il sistema di distribuzione dell’acqua fredda deve essere progettato in modo tale che l’acqua fredda aumenti solo lievemente la propria temperatura nelle sezioni della conduttura tra l’allacciamento domestico e i punti di presa.

Negli impianti di acqua fredda realizzati in conformità alla direttiva W3/C3 della SVGW, per l’esercizio conforme alle disposizioni la temperatura dell’acqua fredda non deve superare i 25 °C per 30 secondi dopo l’apertura di un punto di presa.

Per ottemperare ai requisiti normativi in materia di acqua fredda sono necessari adeguati sistemi di distribuzione, in particolare in edifici con spazio limitato. Negli edifici residenziali, ad esempio, tutte le condutture montanti vengono spesso installate, per mancanza di spazio, in un vano tecnico comune o in un sistema di parete, con le condutture di riscaldamento, dell’acqua calda, di circolazione e dell’acqua fredda posate affiancate. Per questi casi sono disponibili soluzioni diverse in base alla situazione costruttiva che consentono di ritardare il riscaldamento dell’acqua fredda nei tratti montanti.

13.4.2 Soluzioni

La direttiva W3/C3:2020 della SVGW descrive due varianti per la separazione termica di condutture con differenti temperature del medio nei tratti montanti degli edifici: tratti montanti con parete divisoria termica e tratti montanti con vani tecnici separati. Un’altra variante non descritta nella direttiva W3/C3 della SVGW ma riconosciuta è costituita da condutture dell’acqua fredda con isolamento rinforzato.

13.4.2.1 Variante 1: parete divisoria termica

La separazione termica è realizzata strutturalmente mediante pareti divisorie, ad esempio con isolanti e pannelli in cartongesso, che suddividono i vani tecnici in zone più calde per condutture montanti con temperature del medio superiori a 25 °C e zone più fredde per condutture montanti con temperature del medio pari o inferiori a 25 °C.

Le pareti divisorie termiche devono essere realizzate in modo tale che il calore irradiato dalla parte di vano tecnico per l’acqua calda all’ambiente adiacente sia maggiore rispetto al calore irradiato dalla parte di vano tecnico per l’acqua calda attraverso la parete divisoria nella parte di vano tecnico per l’acqua fredda. Il materiale per il rivestimento non ha alcuna influenza poiché la superficie del rivestimento è molto più grande rispetto alla superficie della parete divisoria termica.

 img
Vano tecnico o sistema di parete con parete divisoria termica

1

Parte di vano tecnico acqua fredda, temperatura del medio ≤ 25 °C

2

Separazione termica

3

Parte di vano tecnico acqua calda

Φ1

Flusso del calore attraverso la parete di separazione dei vani

Φ2

Flusso del calore attraverso la parete anteriore del vano tecnico

Aspetti essenziali:

  • La separazione termica e l’isolamento delle condutture dell’acqua calda e dell’acqua fredda vanno prolungati fino al distributore compreso se la loro lunghezza è ≤ 1 m (W3/C3:2020 della SVGW).

  • L’isolamento delle tubazioni deve essere effettuato a regola d’arte e senza interruzioni.

  • Nei sistemi di circolazione convenzionali, ossia nelle condutture PWH e PWH-C isolate separatamente, l’isolamento è più semplice da realizzare ma la perdita di calore è maggiore rispetto ai sistemi tubo su tubo.

  • La temperatura ambiente è un fattore determinante per la temperatura all’interno della parte di vano tecnico per l’acqua fredda.

  • Occorre tenere conto del concetto di protezione antincendio e isolamento acustico.

  • La separazione termica funziona solo se gli isolamenti sono realizzati a regola d’arte e senza interruzioni.

L’immagine seguente mostra l’impiego di una parete divisoria termica in un sistema premurale:

 img
Parete divisoria termica in sistema premurale

1

Conduttura di circolazione PWH-C

2

Conduttura montante acqua calda PWH

3

Isolante, ad esempio pannello di lana minerale di 50 mm

4

Parete divisoria termica: pannello in cartongesso, ad esempio 12.5 mm

5

Conduttura montante di acqua fredda PWC

I difetti di tenuta nella costruzione e nella realizzazione delle pareti divisorie provocano spostamenti d’aria tra le parti del vano tecnico. Ciò determina uno scambio di calore tra la conduttura dell’acqua fredda e le condutture dell’acqua calda, come illustrato nella figura seguente:

 img
Visualizzazione della circolazione dell’aria in un vano tecnico simulato con parete divisoria termica che presenta punti con perdite in alto e in basso. Il movimento delle particelle d’aria è rappresentato dalle traiettorie che hanno un colore corrispondente alla velocità. Le superfici colorate visualizzano le temperature dell’aria all’interno del vano tecnico. Gli spostamenti d’aria provocano uno scambio di calore indesiderato tra le due parti del vano tecnico.
13.4.2.2 Variante 2: vani tecnici separati

L’impiego di vani tecnici separati è diffuso soprattutto negli edifici industriali, con vani tecnici fissi per tubazioni con diverse temperature del medio e per installazioni elettriche quali collegamenti di cavi.

La struttura di base è costituita da vani tecnici separati per impianti di acqua calda con temperature del medio superiori a 25 °C e per impianti di acqua fredda con temperature del medio uguali o inferiori a 25 °C.

 img
Vani tecnici separati

1

Vano tecnico acqua fredda, temperatura del medio ≤ 25 °C

2

Vano tecnico acqua calda

Aspetti essenziali:

  • È necessario coordinare e suddividere più ambiti.

  • L’isolamento delle tubazioni deve essere effettuato a regola d’arte e senza interruzioni.

  • Occorre tenere conto del concetto di protezione antincendio e isolamento acustico.

13.4.2.3 Variante 3: condutture dell’acqua fredda con isolamento rinforzato

Le condutture dell’acqua fredda con isolamento rinforzato sono utilizzate in edifici residenziali con vani tecnici destinati esclusivamente alla distribuzione di acqua fredda e calda. Un’alternativa equivalente ai vani tecnici con separazione termica risiede in isolamenti con spessore minimo PIR 50 mm. Per l’isolamento occorre accertarsi che abbia una conducibilità termica minima (PIR a monte della gomma cellulare). Sono ammessi altri medi purché la loro temperatura non superi i 40 °C. Le condutture montanti sono integrate nel sistema di parete.

 img
Condutture dell’acqua fredda con isolamento rinforzato

1

Vano tecnico

2

Conduttura montante di acqua fredda PWC con isolamento PIR 50 mm

In un vano tecnico flocculato è possibile continuare a isolare le condutture dell’acqua fredda con PIR 30 mm. A tal fine è tuttavia necessario rispettare una distanza minima di ca. 70 cm tra la conduttura dell’acqua calda e la conduttura dell’acqua fredda poiché la flocculazione compressa intorno alla conduttura dell’acqua calda causa una trasmissione di calore. La distanza minima è un valore indicativo e risulta dalle configurazioni di prova misurate e simulate.

Aspetti essenziali:

  • Un sistema tubo su tubo ha una perdita di calore minore rispetto a un sistema di circolazione convenzionale.

  • Se si utilizzano sistemi tubo su tubo, la somma dei due diametri esterni deve essere presa in considerazione per il calcolo dello spessore dell’isolamento (W3/C3:2020 della SVGW).

  • Se si utilizza lana minerale per le condutture dell’acqua fredda si deve tenere conto del problema della condensa.

  • Gli isolamenti devono essere effettuati a regola d’arte e senza interruzioni.

  • Occorre tenere conto del concetto di protezione antincendio e isolamento acustico.

L’immagine seguente mostra l’impiego di condutture dell’acqua fredda con isolamento rinforzato all’interno di un sistema premurale:

 img
Conduttura montante di acqua fredda con isolamento rinforzato all’interno di un sistema premurale

1

Conduttura montante isolata di acqua fredda

2

Conduttura montante isolata di acqua calda con circolazione dell’acqua calda tubo su tubo

L’immagine seguente mostra la distribuzione della temperatura in un vano tecnico simulato con conduttura dell’acqua fredda con isolamento rinforzato:

 img
Visualizzazione della distribuzione della temperatura in un vano tecnico simulato senza flocculazione del vano, distribuzione del calore dopo 12 ore di ristagno, temperatura PWC 21 °C, distanza interna tra le condutture montanti PWC e PWH 15 cm, temperatura ambiente 23 °C

1

Tubazione PWC PIR 50 mm, indipendentemente dal diametro del tubo

2

Tubazioni PWH e PWH-C come sistema tubo su tubo PIR 50 mm

13.4.3 Flocculazione del vano

La flocculazione del vano serve a soddisfare i requisiti di isolamento acustico e di protezione antincendio. La flocculazione del vano non sostituisce tuttavia gli isolamenti delle tubazioni. Tali isolamenti devono essere effettuati in modo continuo e senza interruzioni, indipendentemente dalla flocculazione del vano, anche in caso di passaggio in pareti, pavimenti e soffitti. La flocculazione del vano contrasta addirittura il mantenimento della temperatura nel sistema di approvvigionamento di acqua calda. A causa della trasmissione di calore determina il riscaldamento dell’acqua fredda nelle condutture dell’acqua fredda e dell’acqua calda posate nelle vicinanze e ritarda il raffreddamento dell’acqua calda alla temperatura ambiente nelle condutture di erogazione.

I vani tecnici flocculati possono presentare ulteriori svantaggi. A causa degli elementi incorporati nel vano tecnico quali cassette di scarico, il materiale flocculante non si distribuisce in modo uniforme e, con il tempo, si compatta nella parte inferiore del vano tecnico creando cavità d’aria nella parte superiore del vano tecnico. Il materiale flocculante utilizzato può essere impregnato di agenti chimici che, uniti all’umidità, possono provocare la corrosione dei tubi e degli elementi a incasso, soprattutto in presenza di isolamenti incompleti o danneggiati.

L’immagine seguente mostra la distribuzione della temperatura in un vano tecnico flocculato:

 img
Visualizzazione della distribuzione della temperatura in un vano tecnico simulato flocculato dopo 12 ore di ristagno, temperatura PWC 23 °C, distanza interna tra condutture montanti PWC e PWH 15 cm

1

Tubazione PWC PIR 30 mm

2

Tubazioni PWH e PWH-C come sistema tubo su tubo, PIR 50 mm

13.4.4 Riepilogo

L’impiego di condutture dell’acqua fredda con isolamento rinforzato consente di ridurre efficacemente al minimo il riscaldamento dell’acqua fredda nei tratti montanti dei sistemi di distribuzione dell’acqua potabile, in particolare in edifici residenziali con spazio limitato. Questa operazione può essere realizzata con oneri prevedibili e contribuisce a mantenere le temperature dell’acqua prescritte dalle direttive. Per un isolamento ottimale delle condutture dell’acqua fredda occorre utilizzare gli stessi spessori dell’isolamento delle condutture dell’acqua calda.

Un altro modo per ritardare il riscaldamento dell’acqua fredda è l’installazione di pareti divisorie nei tratti montanti, per separare termicamente le condutture dell’acqua fredda da quelle dell’acqua calda. Nella prassi può tuttavia risultare difficile realizzare la separazione termica attraverso uscite e attraversamenti nel tratto montante. Negli edifici di grandi dimensioni è opportuno prevedere vani tecnici separati.

13.5 Scatole rubinetteria sotto muro: esempi di soluzioni per il collegamento alle condutture montanti

Il raccordo a regola d’arte delle scatole rubinetteria sotto muro al tratto montante o al vano tecnico pone generalmente alcune criticità. Per realizzare il collegamento dal vano tecnico al piano occorre, in particolare, prestare attenzione a una posa delle tubazioni che permetta di garantire gli isolamenti termici necessari.

Qui di seguito vengono proposti tre esempi pratici di installazioni premurali. Un esempio mostra una soluzione con isolamento termico rinforzato delle condutture dell’acqua fredda. Gli altri esempi mostrano possibili soluzioni in cui la separazione termica viene realizzata attraverso una distanza minima tra le condutture montanti.

Ulteriori informazioni sono disponibili in 👉 Ritardo del riscaldamento dell’acqua fredda nei tratti montanti.

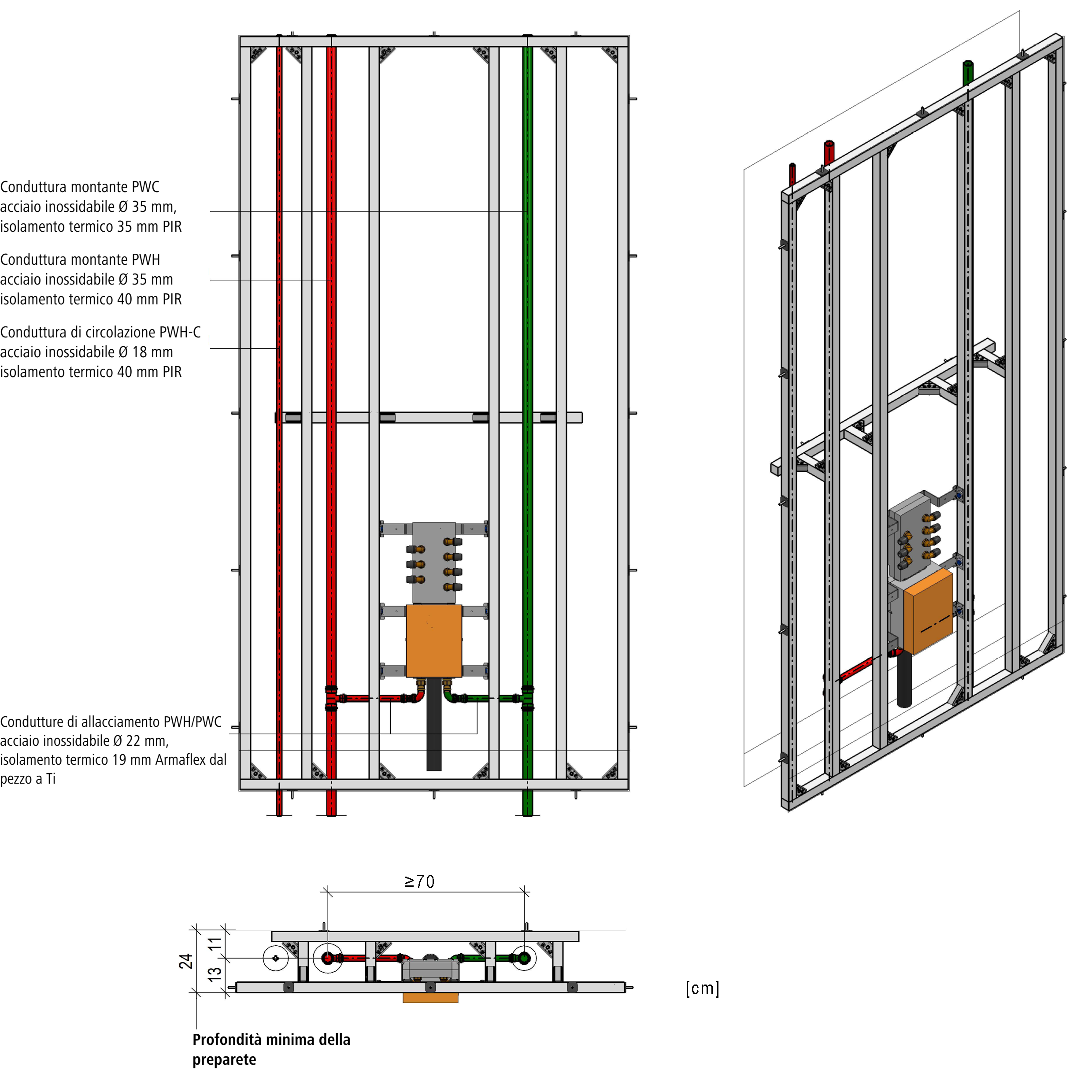
13.5.1 Esempio con isolamento termico rinforzato della conduttura montante di acqua fredda

 img
Separazione termica con isolamento termico 50 mm PIR

13.5.2 Esempi di soluzioni con separazione termica realizzata attraverso una distanza minima tra le condutture montanti

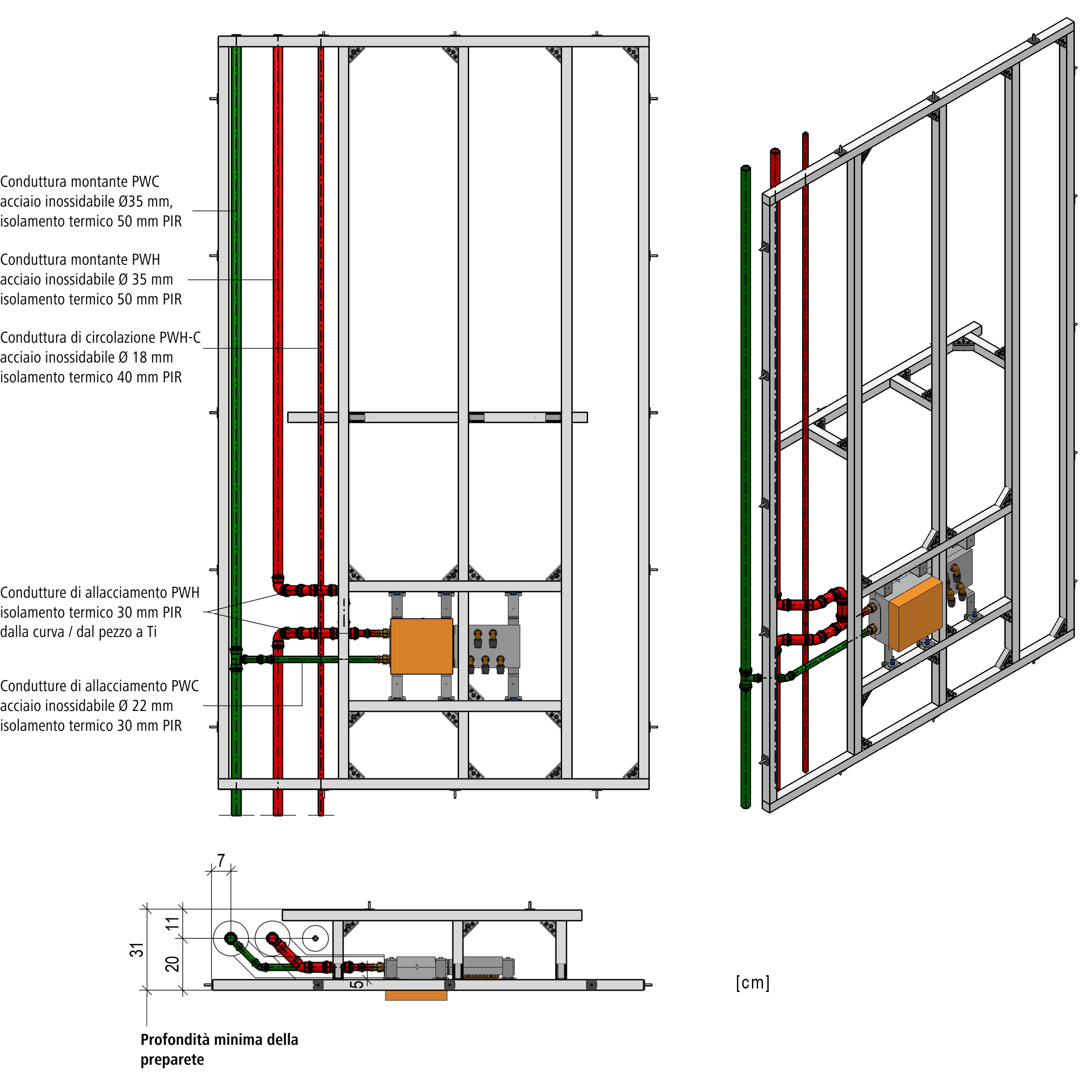
13.5.2.1 Con condutture di allacciamento in acciaio inossidabile
 img
Separazione termica realizzata con una distanza minima di 70 cm, condutture di allacciamento in acciaio inossidabile
13.5.2.2 Con condutture di allacciamento flessibili in materiale sintetico PE-X
 img
Separazione termica realizzata con una distanza minima di 70 cm, condutture di allacciamento flessibili in materiale sintetico

13.6 Protezione antigelo

La protezione dal gelo delle condutture di acqua potabile può essere realizzata per mezzo di nastri riscaldanti. Gli isolamenti termici non possono impedire il congelamento delle condutture di acqua potabile ma solo ritardarlo.

Per ulteriori informazioni, 👉 Nastro riscaldante.