Top
Saisie rapide

261.0.051 / V12

13 Isolation thermique

13.1 Consignes pour le dimensionnement de l’isolation thermique

L’isolation thermique de tuyaux et d’éléments d’installations doit être enveloppante et continue. Les ponts thermiques, le contact des éléments de construction ainsi que les flux d’air entre le tuyau et l’isolation thermique provoquent des pertes de chaleur, p. ex. au niveau des conduites de circulation tuyau-contre-tuyau.

Pour le calcul de l’isolation thermique, c’est le diamètre extérieur des conduites qui est déterminant. Le tableau suivant indique les valeurs nominales obligatoires pour le diamètre extérieur des conduites correspondant à des produits de Nussbaum. Pour les robinetteries et les distributeurs, l’épaisseur d’isolation du diamètre extérieur des conduites correspondantes peut être divisée par deux (SIA 385/1).

Diamètre nominal DN

Acier inoxydable
Optipress (DIN 17440/DIN 17455)

Optipress-Therm (DIN 2394)

Optifitt-Press

Optiflex

Tuyau fileté (ISO 7-1/EN 10226)

[—]

[mm]

[mm]

[pouces]

[mm]

[mm]

10

—

—

⅜

16 (x 3.8*)

17.2

12

15

15

—

16 (x 2.2*)

—

15

18

18

½

20

21.3

20

22

22

¾

25

26.9

25

28

28

1

32

33.7

32

35

35

1¼

40

42.4

40

42

42

1½

50

48.3

50

54

54

2

63

60.3

60**

64

64

—

—

—

65

76.1

76.1

2½

—

76.1

80

88.9

88.9

2

—

88.9

100

—

108

4

—

114.3

* Epaisseur de la paroi du tuyau

** Diamètre nominal spécifique à Optipress pour la conduite d’alimentation

Diamètre nominal et diamètre extérieur correspondant des tuyaux système de Nussbaum et des tuyaux filetés selon ISO 7-1/EN 10226 disponibles dans le commerce.

13.2 Conduites d’eau chaude

Les conduites d’eau chaude doivent être isolées pour minimiser les pertes de chaleur et les effets de températures de surface trop élevées.

  • Le distributeur et les conduites de raccordement vers les colonnes montantes et le chauffe-eau doivent être isolés lorsque la longueur totale du distributeur et de la conduite de raccordement est ≤ 1 mètre.

  • Pour les conduites de circulation tuyau-contre-tuyau, le diamètre extérieur déterminant correspond à la somme des diamètres extérieurs des deux tuyaux.

  • Pour l’isolation thermique de robinetteries et de vannes, on utilise des coques isolantes en polypropylène expansé (PPE).

  • Les conduites de soutirage ne nécessitent pas d’isolation thermique.

Epaisseurs d’isolation pour températures d’eau chaude de 30 à 90 °C (selon les lois cantonales sur l’énergie)

Epaisseurs d’isolation pour de l’eau à une température de 60 °C (selon Isolsuisse)

Diamètre nominal DN

Mousse rigide de polyisocyanurate PIR λ ≤ 0.03 W/mK*

Mousse élastomère λ ≤ 0.03 … 0.05 W/mK*

Mousse rigide de polyisocyanurate PIR λ ≤ 0.03 W/mK*

Mousse élastomère λ ≤ 0.03 … 0.05 W/mK*

[—]

[mm]

[mm]

[mm]

[mm]

10

30

40

30

60

12

15

30

40

30

60

20

40

50

40

60

25

40

50

40

60

32

40

50

50

80

40

50

60

60

80

50

50

60

60

80

65

60

80

60

80

80

60

80

60

80

100

80

100

80

100

125

80

100

80

100

150

80

100

80

100

200

80

120

80

120

* à 10 °C

Epaisseurs d’isolation minimales pour conduites d’eau chaude (selon notice technique suissetec 07/2023)

13.3 Conduites d’eau froide

Les conduites d’eau froide doivent être isolées contre leur réchauffement par des conduites d’eau chaude et autres sources de chaleur.

Diamètre extérieur du tuyau

Mousse élastomère

Mousse rigide de polyisocyanurate (PIR)

[mm]

[mm]

[mm]

17

13

30

22

28

35

42

48

60

76

19

89

114

140

168

175

219

Epaisseurs d’isolation pour conduites d’eau froide (selon notice technique suissetec 10/2020)

13.4 Retardement du chauffage de l’eau froide dans les colonnes montantes

Aujourd’hui, on accorde une importance croissante à l’hygiène de l’eau froide. Il arrive en effet de plus en plus que des installations techniques dans les bâtiments ou des températures ambiantes de plus de 25 °C provoquent un réchauffement de l’eau froide, avec pour conséquence la prolifération des légionelles. C’est pourquoi il importe de prendre des mesures adéquates pour que la température de l’eau de boisson froide soit maintenue aussi froide que possible, sous les 25 °C.

13.4.1 Les enjeux

Dans un système de distribution d’eau froide, le maintien en température est un paramètre important dans la planification et l’exécution, et il doit être pris en compte dès le début. Le système de distribution d’eau froide doit être conçu de telle manière que la température n’augmente que faiblement dans les conduites entre le raccordement d’eau du bâtiment et les points de soutirage.

Dans le cas d’installations d’eau froide conformes à la directive SVGW W3/C3, la température de l’eau froide ne doit pas dépasser 25 °C au maximum 30 secondes après l’ouverture d’un point de soutirage.

En vue de répondre aux exigences réglementaires relatives à l’eau froide, il faut prévoir des systèmes de distribution adéquats, en particulier dans des bâtiments exigus. Dans les immeubles d’habitation p. ex. où l’on manque de place, il arrive que toutes les colonnes montantes soient placées dans une seule gaine ou paroi d’installation, où se trouvent rassemblées côte à côte les conduites pour le chauffage, l’eau chaude et l’eau froide, et les conduites de circulation. Pour ces cas de figure, et selon l’aménagement du bâtiment, il existe différentes solutions pour retarder le réchauffement de l’eau froide dans les colonnes montantes.

13.4.2 Solutions

La directive W3/C3:2020 de la SVGW décrit deux variantes pour la séparation thermique de conduites véhiculant des fluides à différentes températures dans les colonnes montantes de bâtiments: les colonnes montantes à paroi de séparation thermique et les conduites montantes à gaines séparées. Il existe encore une autre variante reconnue mais pas décrite dans la directive W3/C3 de la SVGW, à savoir les conduites d’eau froide à isolation renforcée.

13.4.2.1 Variante 1: paroi de séparation thermique

La séparation thermique est réalisée par des parois de séparation constituées p. ex. de plaques isolantes et de plaques de placoplâtre qui séparent les gaines avec, d’un côté, des colonnes montantes avec des fluides à plus de 25 °C et, de l’autre côté, des colonnes montantes avec des fluides à 25 °C ou moins.

Les parois de séparation thermique doivent être réalisées de telle sorte que le rayonnement thermique de la partie chaude de la gaine vers la pièce accolée soit plus élevé que celui de la partie chaude de la gaine qui traverse la paroi de séparation vers la partie froide de la gaine. Le matériau pour le parement n’a à cet égard pas d’incidence, car la surface de parement est comparativement beaucoup plus grande que celle de la paroi de séparation thermique.

 img
Gaine technique ou paroi d’installation avec paroi de séparation thermique

1

Partie de gaine froide, température de fluide ≤ 25 °C

2

Séparation thermique

3

Partie de gaine chaude

Φ1

Flux thermique à travers la paroi de séparation de gaine

Φ2

Flux thermique à travers la paroi de cadre de gaine

Points à noter:

  • Poursuivre la séparation et l’isolation thermique des conduites d’eau froide et chaude jusqu’au distributeur et l’inclure si leur longueur est ≤ 1 m (SVGW W3/C3:2020).

  • L’isolation des conduites doit être complète et être réalisée par un professionnel.

  • Sur les systèmes de circulation conventionnels, c’est-à-dire sur les conduites PWH et PWH-C isolées séparément, l’isolation est plus facile à réaliser, mais les pertes de chaleur sont plus élevées que pour les systèmes tuyau-contre-tuyau.

  • La température ambiante est un facteur essentiel pour la température dans la partie de gaine froide.

  • Il faut prendre en compte le concept d’incendie et de protection acoustique.

  • La séparation thermique fonctionne à la seule condition que les isolations soient complètes et réalisées par un professionnel.

La figure suivante montre une paroi de séparation thermique dans un système de cadres de montage:

 img
Paroi de séparation thermique dans un système de cadres de montage

1

Conduite de circulation PWH-C

2

Colonne montante d’eau chaude PWH

3

Plaque isolante, p. ex. une plaque de laine minérale de 50 mm

4

Paroi de séparation thermique: plaque de placoplâtre, p. ex. 12.5 mm

5

Colonne montante d’eau froide PWC

Les inétanchéités dans la construction et l’exécution de parois de séparation permettent à l’air de circuler entre les secteurs de gaine. Il en résulte un échange thermique entre les conduites d’eau chaude et d’eau froide, comme le montre la figure suivante:

 img
Visualisation de la circulation d’air dans une simulation de gaine à paroi de séparation thermique, avec des fuites sur le haut et le bas. Le mouvement des particules d’air est illustré par des trajectoires dont la couleur indique la vitesse correspondante. Les surfaces colorées permettent de visualiser les températures de l’air dans la gaine. Les mouvements d’air se traduisent par des échanges thermiques indésirables entre les secteurs de gaine.
13.4.2.2 Variante 2: gaines séparées

Les gaines séparées sont très répandues, dans les bâtiments industriels surtout. Il s’agit de gaines montantes d’un seul tenant, renfermant des conduites de fluides à différentes températures et des installations électriques comme des liaisons par câbles.

En principe, les gaines sont séparées selon qu’elles renferment des conduites chaudes dont les fluides sont à plus de 25 °C, ou des conduites froides dont les fluides sont à des températures ≤ à 25 °C.

 img
Gaines d’installation séparées

1

Gaine froide, température de fluide ≤ 25 °C

2

Gaine chaude

Points à noter:

  • Pour la coordination et la répartition des tâches, il faut faire appel à plusieurs corps de métiers.

  • L’isolation des conduites doit être complète et être réalisée par un professionnel.

  • Il faut prendre en compte le concept d’incendie et de protection acoustique.

13.4.2.3 Variante 3: conduites d’eau froide à isolation renforcée

Les conduites d’eau froide à isolation renforcée sont utilisées dans les immeubles résidentiels à gaines montantes conçues uniquement pour la distribution d’eau froide et d’eau chaude. Les épaisseurs d’isolation correspondant à au moins PIR 50 mm sont une alternative équivalente aux gaines à séparation thermique. Pour l’isolation, il convient d’avoir une faible conductivité thermique (PIR avant le caoutchouc cellulaire). D’autres fluides sont autorisés dans la mesure où leur température maximale se situe à 40 °C. Les colonnes montantes sont intégrées dans la paroi d’installation.

 img
Conduites d’eau froide à isolation renforcée

1

Gaine montante

2

Colonne montante d’eau froide PWC à isolation PIR 50 mm

Dans une gaine floquée, on peut tout à fait isoler une conduite d’eau froide avec du PIR 30 mm. Selon la situation, il faut cependant respecter une distance minimale d’env. 70 cm entre la conduite d’eau froide et la conduite d’eau chaude, car le flocage comprimé autour de la conduite d’eau chaude a pour effet de transmettre la chaleur à d’autres matériaux. La distance minimale indiquée est une valeur indicative obtenue à partir de simulations et des valeurs mesurées sur les montages d’essais.

Points à noter:

  • Le système tuyau-contre-tuyau présente des pertes de chaleur plus faibles qu’un système de circulation conventionnel.

  • Lorsque des systèmes tuyau-contre-tuyau sont utilisés, il faut, pour le calcul de l’épaisseur d’isolation, prendre en compte la somme des deux diamètres extérieurs (SVGW W3/C3:2020).

  • S’il est recouru à la laine minérale en rapport avec l’eau froide, l’eau de condensation est un phénomène auquel il faut réfléchir.

  • Les isolations doivent être complètes et être réalisées par un professionnel.

  • Il faut prendre en compte le concept d’incendie et de protection acoustique.

La figure suivante montre des conduites d’eau froide à isolation renforcée dans un système de cadres de montage:

 img
Colonne montante d’eau froide à isolation renforcée dans un système de cadres de montage

1

Colonne montante d’eau froide isolée

2

Colonne montante d’eau chaude isolée à circulation d’eau chaude tuyau-contre-tuyau

La figure suivante montre la distribution de température dans une simulation de gaine avec conduite d’eau froide à isolation renforcée:

 img
Visualisation de la distribution de température dans une simulation de gaine montante sans flocage de la gaine, distribution de la chaleur après 12 heures de stagnation, température PWC 21 °C, distance axiale entre colonne montante PWC et PWH 15 cm, température ambiante 23 °C

1

Conduite PWC PIR 50 mm, indépendamment du diamètre du tuyau

2

Conduites PWH et PWH-C comme système RAR PIR 50 mm

13.4.3 Flocage de gaine

Le flocage de gaine sert à respecter les exigences relatives à la protection acoustique et incendie. Le flocage de gaine ne remplace cependant pas une isolation en bonne et due forme des conduites. Celles-ci doivent, indépendamment du flocage de gaine, être isolées d’un bout à l’autre, également dans les traversées au niveau des murs, planchers et plafonds. En ce qui concerne le maintien en température de l’alimentation en eau chaude, le flocage de gaine est même contre-productif. Sur les conduites d’eau chaude et d’eau froide très proches l’une de l’autre, ce flocage a pour effet de transmettre la chaleur sur l’eau froide et, dans les conduites de soutirage, il retarde le refroidissement de l’eau chaude à la température ambiante.

Les gaines floquées peuvent présenter d’autres inconvénients encore. En raison des éléments montés dans la gaine, comme des réservoirs de chasse, le matériau de flocage ne se répartit pas uniformément et, avec le temps, il se densifie dans la partie basse de la gaine, sa partie haute étant peu à peu occupée par des poches d’air. A cela s’ajoute le fait que le matériau de flocage peut être imprégné de produits chimiques. Leur contact avec de l’humidité peut corroder les conduites et les éléments à l’intérieur, en particulier lorsque les isolations sont incomplètes ou endommagées.

La figure suivante montre la distribution de température dans une gaine floquée:

 img
Visualisation de la distribution de température dans une simulation de gaine floquée après 12 heures de stagnation, température PWC 23 °C, distance axiale entre colonne montante PWC et PWH 15 cm

1

Conduite PWC PIR 30 mm

2

Conduites PWH et PWH-C comme système RAR, PIR 50 mm

13.4.4 Résumé

Les conduites d’eau froide à isolation renforcée permettent de minimiser efficacement le réchauffement de l’eau froide dans les colonnes montantes de systèmes de distribution d’eau de boisson, en particulier dans les bâtiments d’habitation exigus. Les mesures à prendre en ce sens sont planifiables et permettent de respecter les températures de l’eau exigées dans les directives. On obtient une isolation optimale des conduites d’eau froide avec la même épaisseur d’isolation que pour les conduites d’eau chaude.

La mise en place de parois dans les colonnes montantes pour réaliser une séparation thermique entre conduites d’eau chaude et conduites d’eau froide constitue un moyen supplémentaire pour retarder le réchauffement de l’eau froide. Dans la pratique, il peut cependant être compliqué d’étanchéifier efficacement la séparation thermique de la colonne montante au niveau des sorties et des traversées. Pour les grands bâtiments, il est recommandé de prévoir des gaines séparées.

13.5 Boîtiers robinetterie à montage caché: exemples de solution pour le raccordement à des conduites montantes

On peut parler d’un véritable défi lorsqu’il s’agit de raccorder dans les règles de l’art des boîtiers robinetterie à montage caché à une colonne montante dans une gaine. Dans la transition de la gaine à l’étage, il faut en effet poser les conduites de manière à respecter les impératifs de l’isolation thermique.

Trois exemples pratiques de solutions pour des installations de cadres de montage sont présentés ci-dessous. Il y a en particulier une solution qui présente une isolation thermique renforcée pour les conduites d’eau froide. Les autres solutions possibles portent sur une séparation thermique à distance minimale entre les conduites montantes.

Pour toute information complémentaire, consulter 👉 Retardement du chauffage de l’eau froide dans les colonnes montantes.

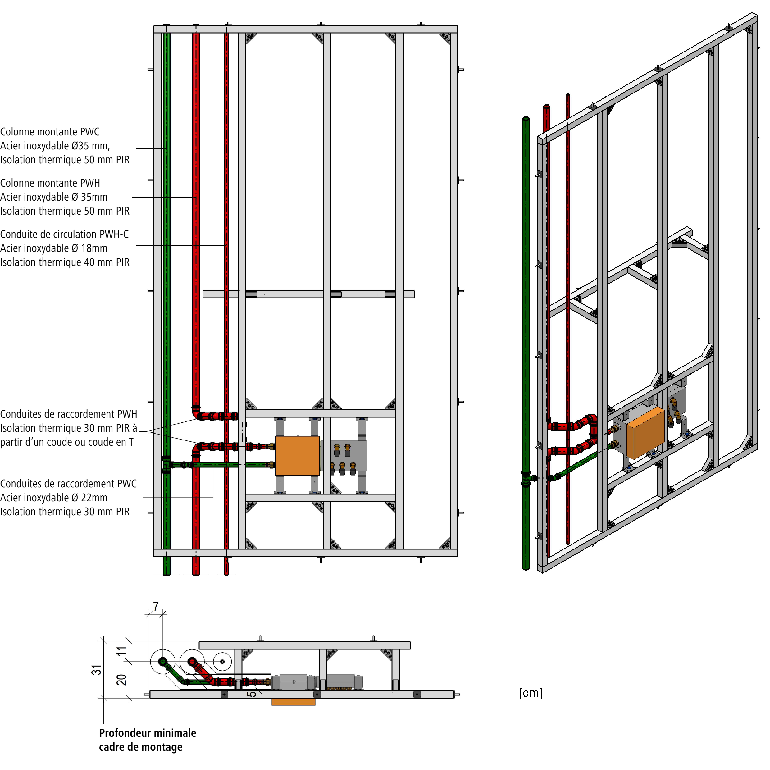
13.5.1 Exemple de solution d’une isolation thermique renforcée pour une conduite montante d’eau froide

 img
Séparation thermique avec isolation thermique 50 mm PIR

13.5.2 Exemples de solution à séparation thermique par distance minimale entre colonnes montantes

13.5.2.1 Avec conduites de raccordement en acier inoxydable
 img
Séparation thermique par distance minimale de 70 cm, conduites de raccordement en acier inoxydable
13.5.2.2 Avec conduites de raccordement flexibles en matière synthétique PE-X
 img
Séparation thermique par distance minimale de 70 cm, conduites de raccordement flexibles en matière synthétique

13.6 Protection antigel

Pour protéger les conduites d’eau de boisson, on peut faire appel à des rubans chauffants. Une isolation thermique n’est pas en mesure d’empêcher le gel des conduites d’eau de boisson. Elle peut tout juste avoir un effet retardateur.

Informations complémentaires, 👉 Ruban chauffant.