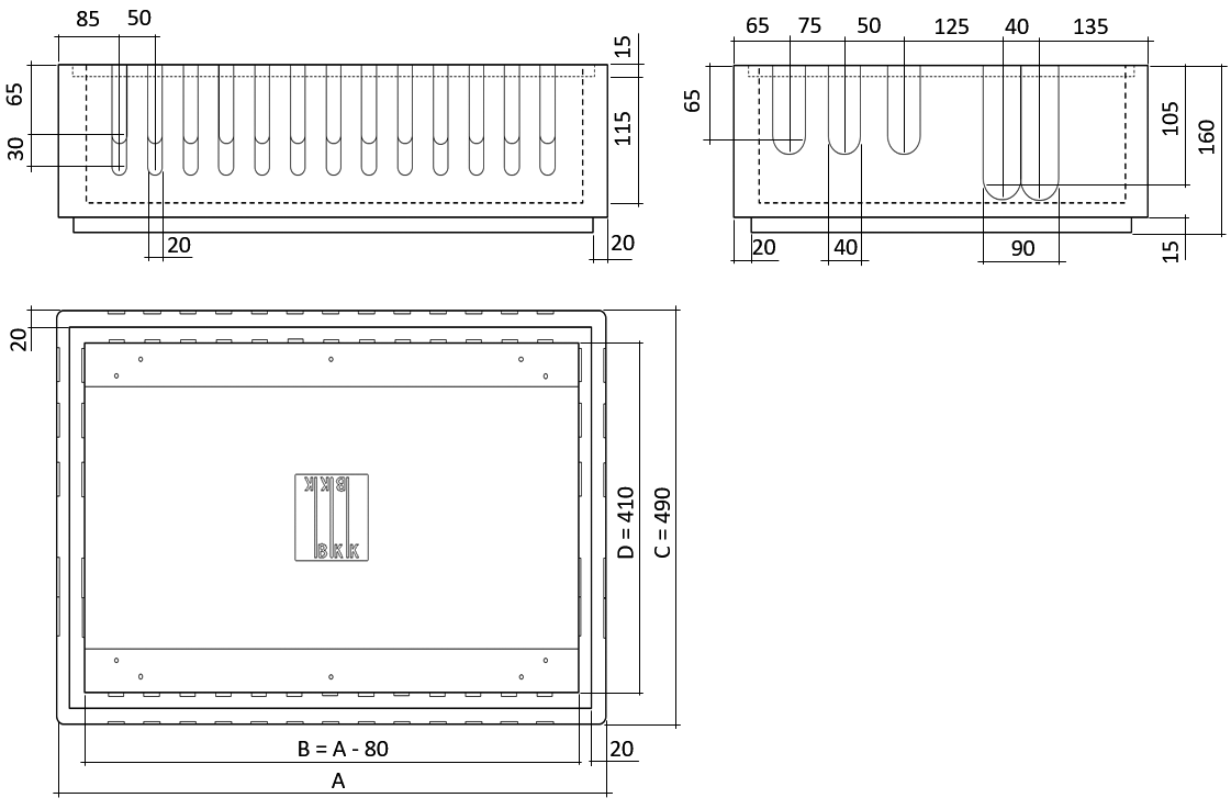
Pagina principale Pianificazione Documenti Tecnici Scheda tecnica - Cassetta a zoccolo Misure d’installazione Scheda tecnica - Cassetta a zoccolo 86055 Scaricare il documento come PDF Indice 1 Descrizione del prodotto 2 Misure d’installazione 3 Dimensionamento delle cassette a zoccolo Scaricare il documento come PDF 261.0.154 / V1 2 Misure d’installazione Articolo Misura A Misura B Misura C Quantità sagomature Peso [mm] [—] [kg] 86055.21 570 490 490 9 5 86055.22 770 690 490 13 7 86055.23 970 890 490 17 8 86055.24 1'170 1'090 490 21 9 Ritorno Continuare