Top
Schnellerfassung

261.0.006 / V6

2 Verlegearten

Optiflex ist ausgelegt für die flexible Verlegung von Rohrleitungen im Massivbau und im Trockenbau.

2.1 Verlegung in Massivwände und Betondecken

Für den Einbau von Optiflex in Massivwände und Betondecken können die flexiblen Optiflex-Kunststoffrohre und das formstabile Optiflex-Flowpress-Rohr verwendet werden.

Optiflex-Profix ist in vielen Trinkwasseranlagen die geeignete Verbindungstechnik in der Etagenverteilung. Zur Herstellung der Rohrverbindungen im Massivbau sind Optiflex-Profix und Optiflex-Flowpress gleich gut geeignet.

2.1.1 Installation mit Optiflex-Kunststoffrohren

Die Verlegung der Optiflex-Kunststoffrohre in Massivwände muss konform mit der SVGW-Richtlinie W3 sein. Die Kunststoffrohre sind so zu verlegen, dass sie im Schadenfall (z. B. bei Undichtheit) mit angemessenem Aufwand ausgetauscht werden können. Daher müssen die Kunststoffrohre mit dem Schutzrohr verwendet werden.

Um die Austauschbarkeit der Rohre sicherzustellen, sind die folgenden baulichen Voraussetzungen zu schaffen:

  • Die Fittings müssen nach der Installation aussen an der Massivwand sichtbar sein. Dies kann mit der Verlegung im Einzelzapfstellensystem erreicht werden. T-Stück-Installationen sind nicht konform mit den Regeln der Technik.

  • Die Schutzrohre müssen auf der ganzen Länge vom Baumaterial umschlossen sein.

  • Die Schutzrohre müssen im Bereich von Biegungen und Hohlräumen befestigt werden. Der empfohlene Befestigungsabstand bei gerader Rohrleitungsverlegung beträgt ca. 0.3 bis 0.5 m.

  • Die Biegung in einer Rohrleitung muss einen Biegeradius RB von minimal dem 8-fachen des Rohrdurchmessers aufweisen.

  • Steinsplitter, Zementreste und andere Verunreinigungen zwischen dem Schutzrohr und dem Optiflex-Rohr müssen entfernt werden.

1

Optiflex-Dose, von aussen sichtbar

2

Schutzrohr

3

Optiflex-Kunststoffrohr flexibel (im Schutzrohr)

4

Optiflex-Dose, von aussen sichtbar

Konforme Verlegung

5

T-Stück, von aussen nicht sichtbar

Keine konforme Verlegung

Montagebeispiel

Die Etagenverteilung im Einzelzapfstellensystem kann mithilfe von Optiflex-Kunststoff-Rohren ausgeführt werden.

1

Steigleitungen

2

Unterputz-Armaturenbox

3

Verteilerbox

4

Optiflex-Kunststoffrohre für Warmwasserleitungen

5

Optiflex-Kunststoffrohre für Kaltwasserleitungen

2.1.2 Installation mit dem formstabilen Optiflex-Flowpress-Rohr

Die Etagenverteilung mit dem formstabilen Optiflex-Flowpress-Rohr kann mit einer T-Stück-Installation erfolgen.

1

Steigleitungen

2

Optiflex-Flowpress-Rohre für Warmwasserleitungen

3

Optiflex-Flowpress-Rohre für Kaltwasserleitungen

4

Vorwandsystem

5

Unterputz-Waschtischbox

2.2 Varianten der Rohrleitungsverlegung in Massivwänden und Betondecken

Optiflex-Rohre können auf folgende Arten verlegt werden, wobei die Abstände zwischen Kalt- und Warmwasserleitungen gemäss der Richtlinie SVGW W3/E3 (Anhang 7) einzuhalten sind:

Rohrleitungsverlegung

Bild

Beschreibung

Im Beton

Das Optiflex-Rohr mit dem Schutzrohr ist vollständig von Beton umschlossen.

Kaltwasser- und Warmwasserleitungen sind getrennt zu verlegen.

Das Optiflex-Rohr ist in Abständen von ca. 1 m mit Rohrbindern zu befestigen.

Für die Rohrleitungsführung in der Betondecke sind Nussbaum Einlegebalken, Einlegehilfen und Einlegekästen erhältlich.

In der Betonaussparung

Das Optiflex-Rohr mit dem Schutzrohr befindet sich in einer Betonaussparung.

Wenn die Betonaussparung nicht zugegossen wird, muss das Optiflex-Rohr gedämmt und im Abstand von ca. 50 cm mit Rohrbriden 87072 befestigt werden.

Unter dem Gussasphalt

Das Optiflex-Rohr mit dem Schutzrohr befindet sich unter dem Guss­asphalt.

Das Optiflex-Rohr muss im Abstand von ca. 50 cm mit Rohrbriden 87072 befestigt werden.

Diese Verlegart kann zu einer Verminderung der Trittschalldämmung führen.

Das Optiflex-Rohr muss vor dem Aufbringen des Gussasphalts mit einer hitzebeständigen Abdeckung gegen Wärmeeinwirkung geschützt werden. Flüssiger Gussasphalt kann Temperaturen von 250 °C erreichen.

Auf dem Beton

Das Optiflex-Rohr mit dem Schutzrohr befindet sich in der Dämmung über dem Beton.

Diese Verlegart kann zu einer Verminderung der Trittschalldämmung führen.

Die Optiflex-Rohre sind geordnet und möglichst nebeneinander zu führen, um die Montage der Schalldämmung zu erleichtern.

Das Optiflex-Rohr ist in Abständen von ca. 50 cm mit Rohrbriden 87072 zu befestigen.

Über der Dämmung

Das Optiflex-Rohr ohne Schutzrohr befindet sich in der Dämmung.

Diese Verlegart ist nicht mit einer Fussbodenheizung kombinierbar.

Die Hohlräume zwischen den Optiflex-Rohren müssen mit Dämmstoff gefüllt werden (im Bild mit farbiger Schraffur)

Das Optiflex-Rohr ist mit Befestigungsclips zu befestigen.

Das Optiflex-Rohr muss im Abstand von ca. 50 cm mit Rohrbriden 87072 befestigt werden.

Jetzt kaufen

2.3 Rohrleitungsverlegung bei Frostgefahr

Zur Sicherstellung der Betriebssicherheit sind Installationen mit Optiflex vor Frost zu schützen. Folgende Gebäudetypen und Bereiche neigen zu Temperaturen unterhalb des Gefrierpunkts:

  • Gebäude mit Innendämmung

  • Terrassenhäuser

  • Randzonen von Kellerdecken, Garagen und Einfahrten

Einer Einfriergefahr ist durch eine Rohrleitungsverlegung im frostfreien Bereich der Baukonstruktion vorzubeugen. Die Rohrleitungsverlegung in Bereichen, die als Wärmebrücke wirken, ist zu vermeiden. Zur Erkennung von frostgefährdeten Bereichen in einem Gebäude muss ein Bauphysiker hinzugezogen werden.

1

Aussenbereich

2

Innenbereich

3

Wärmebrücke

Rohrleitungen in frostgefährdeten Bereichen müssen entleert und mit Druckluft ausgeblasen werden. Wenn die frostsichere Rohrleitungsverlegung nicht möglich ist, sind die Rohre gegen das Einfrieren zu schützen.

2.4 Verlegung in einer Vorwand oder Trennwand

Bei der Rohrleitungsverlegung in einer Vorwand oder Trennwand ist sowohl die T-Stück-Installation wie das Einzelzapfstellensystem mit Optiflex-Profix- oder Optiflex-Flowpress-Verbindungen möglich. Nussbaum empfiehlt das Einzelzapfstellensystem. Die Länge der Ausstossleitungen kann kurz gehalten werden, besonders in Fällen, in denen die Verlegung der Ausstossleitungen im Boden nicht möglich ist.

Vorwandinstallation

1

Steigleitungen

2

Verteilerbox

3

Warmwasserleitungen

4

Kaltwasserleitungen

5

Vorwandsystem

6

Unterputz-Waschtischbox

2.5 Unterputz-Armaturenboxen: Lösungsbeispiele für den Anschluss an die Steigleitungen

Der fachgerechte Anschluss von Unterputz-Armaturenboxen zur Steigzone bzw. zum Schacht stellt immer wieder eine Herausforderung dar. Beim Übergang aus dem Schacht auf die Etage geht es insbesondere darum, die Rohrleitungen so zu verlegen, dass die erforderlichen Wärmedämmungen eingehalten werden können.

Im Folgenden werden drei praxisnahe Lösungsbeispiele von Vorwandinstallationen aufgeführt. Ein Beispiel zeigt eine Lösung mit verstärkter Wärmedämmung der Kaltwasserleitungen. Die weiteren Beispiele zeigen mögliche Lösungen mit thermischer Trennung durch Mindestabstand zwischen den Steigleitungen.

Weitere Informationen sind im Nussbaum Dokument «Anwendungen und Lösungen Warmwasser» im Kapitel «Verzögerung der Kaltwassererwärmung in Steigzonen» zu finden, 👉 Anwendungen und Lösungen 261.0.051.

2.5.1 Lösungsbeispiel mit verstärkter Wärmedämmung der Kaltwasser-Steigleitung

 img
Thermische Trennung mit Wärmedämmung 50 mm PIR

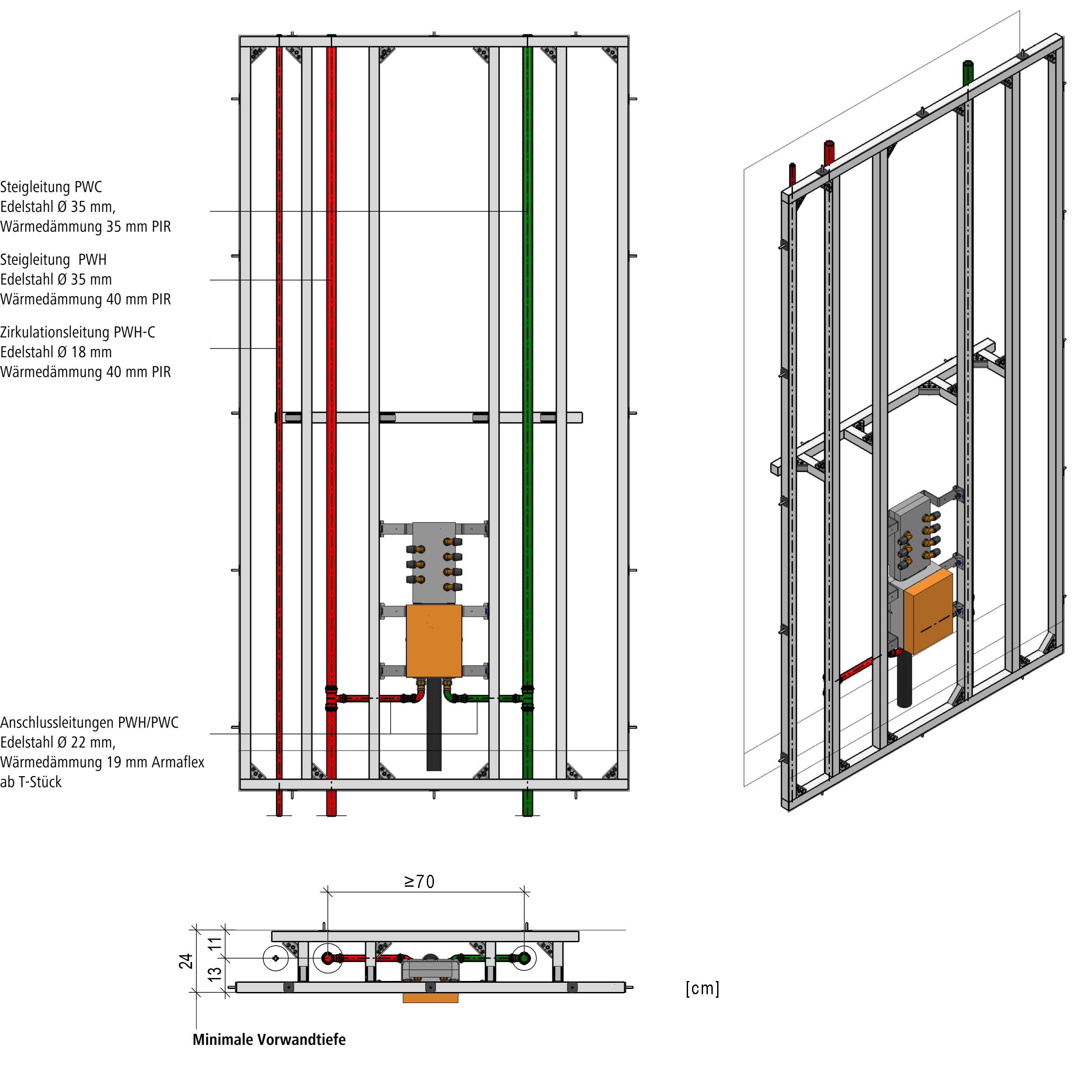
2.5.2 Lösungsbeispiele mit thermischer Trennung durch Mindestabstand zwischen den Steigleitungen

2.5.2.1 Mit Anschlussleitungen aus Edelstahl
 img
Thermische Trennung durch Mindesabstand 70 cm, Anschlussleitungen aus Edelstahl
2.5.2.2 Mit flexiblen Anschlussleitungen aus Kunststoff PE-X
 img
Thermische Trennung durch Mindesabstand 70 cm, flexible Anschlussleitungen aus Kunststoff